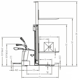
Electric Rider Stacker 2 ton

Specification

Gallery